| |
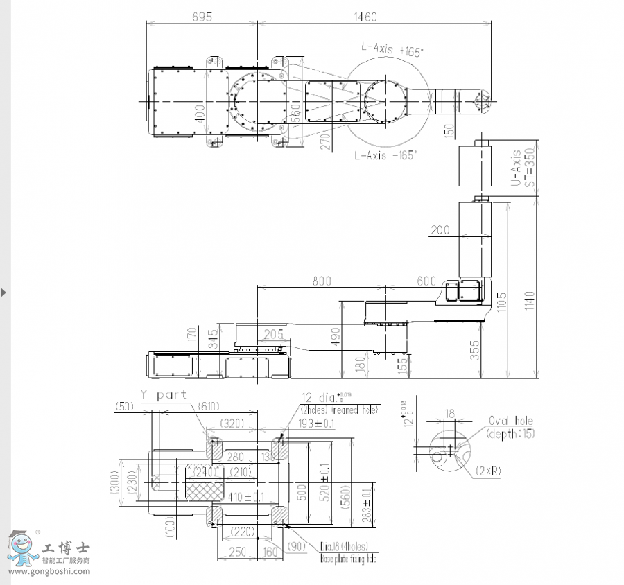
適合汽車內板噴涂|MPO10|3 軸設計,小巧緊密 |
 點擊圖片查看原圖
|
|
| 品牌: |
安川機器人 |
| 軸數: |
3 軸設計,小巧緊密 |
| 單價: |
面議 |
| 所在地: |
上海 |
| 有效期至: |
長期有效 |
| 最后更新: |
2020-02-15 21:39 |
| 瀏覽次數: |
668 |
 |
|
|
|
- 安川機械手噴涂服務
-
[VIP第6年] 指數:1
-
通過認證 [誠信檔案]
-
聯系人庾經理(先生) 銷售經理
- 會員 [當前離線] [加為商友] [發送信件]
- 郵件ywk@gongboshi.com
- 電話18616561800
- 手機18616561800(微信同號)
- 地址上海市寶山區富聯一路98弄6號
-
|
|