戶外緊湊型 12KV高壓開關柜XGN66-12


適用范圍
XGN66-12箱型(戶內)固定式交流金屬封閉開關設備(以下簡稱開關柜)是新一代高壓電器成套產品,符合國家標準GB3906《10-35kV交流金屬封閉開關設備》和電力行業DLT404《戶內交流高壓開關柜訂貨技術條件》的要求,也滿足標準EC60298《1kV以上52kV以下交流金屬封閉開關設備和控制設備》的要求。
該產品吸收了國外的先jin技術,針對目前我國現有同類開關柜在運行中發生的事故率較高和體積龐大等問題而自行設計研制的。具有柜體體積小(僅普通開關柜體積的50?,斷路器性能好,可靠性高,“五防”聯鎖機構可靠、簡單等優點。
正常使用條件
1、環境溫度上限+40℃,下限-10℃;
2、海拔高度不超過1000m;
3、空氣相對濕度日平均值不大于95%月平均值不大于90%水蒸汽日平均值不大于2.2×10Mpa,月平均值不大于18×10Mpa;
型號及含義
技術參數
主要用途和適用范圍
開關柜適用于3.6-12KV三相交流50Hz單母線分段的戶內成套裝置,作為接受和分配電能之用,并具有對電路進行控制,保護和監測等功能,可適用在各類型發電廠,變電站及工礦企業,高層建筑等場所,也可與環網柜組合應用于開閉站中。
產品結構
開關柜為箱式固定式結構,柜體由覆鋁鋅板經多重折彎后組裝而成。開關柜后上部為主母線室,室頂部沒有壓力釋放裝置,前上部為低壓室,小母線可從室底部用電纜連接,或在室頂布置銅管或銅棒;開關柜中下部貫通;母線室通過GN30型旋轉式隔離開關與中下部保持電氣連接;中部安裝真空斷路器,下部安裝接地開關和出線側隔離開關;后部安裝電流互感器,電互感器,避雷器,一次電纜從柜后下部出線;柜底布置有接地母線,貫穿于整排開關柜;隔離開關與接地開關在柜前右部操作。
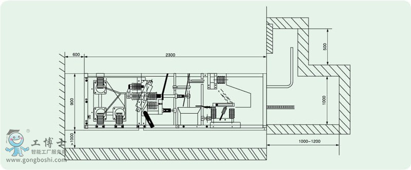
電纜進出線的布置參考圖
主要結構和特點
1.柜體采用優質角鋼焊接而成。
2.斷路器室位于柜體中(下)部,安裝、調試、維護方便。標準配裝ZN63AVS1-121斷路器,并設有壓力釋放通道,確保人身安全。
3.采用先jin可靠的旋轉式隔離開關,可在主母線帶電下安全進入斷路器室檢修。先jin可靠的旋轉式隔離開關,可在主母線帶電下安全進入斷路器室檢修。
4.整柜防護等級IP2X。
5.設有可靠功能齊全的強制性機械閉鎖裝置,簡便有效達到“五防”要求。
6.具有可靠的接地系統。
7.門上裝有觀察窗,可清楚觀察到柜內元件地工作狀態。
8.操作機構閉鎖采用同XGN2-12柜用的JSXGN閉鎖機構,簡單可靠方便實用。
9.進出線電纜低于柜底前部,方便用戶連接。
布置示意圖
安裝
1、安裝基礎參考下圖,基礎槽鋼突出地在1-3mm、每米范圍內不平度不超過1.5mm,全長范圍內不超過5mm。
2、將開關柜按順序放置于基礎上,調整好安裝的位置,然后用M12螺栓或者用點焊方法進行固定死,柜與柜間用M8螺栓并緊。
3、拆開后蓋板安裝主母線和一次電源,端子接觸面應注意清理干凈并涂中性凡士林,安裝好后封堵電纜孔。
4、連接柜間接地母線,使沿開關柜排列方向連成一體,檢查工作接地和保護接地是否有遺漏,接地回路是否連接導通,工作接地電阻應不大于1000uQ,保護接地電阻應不大于4Q。
5、安裝二次電纜,電纜由柜前底部引入,順測壁進入低壓室,分接于端子排上;或由柜頂二次小母線上引入低壓室,裝好后封堵電纜孔。
6、清理柜內灰塵雜物。
訂貨須知
a、 一次線路方案的系統圖,柜體排列圖;
b、 二次回路接線原理,端子排列圖如端子無排列圖時按制造廠規定;
c、 柜內電器元件的型號、規格、數量表;
d、 主母線、支母線的材質、規格;
e、 如有母線橋,應提供跨距尺寸;
f、 開關柜使用在特殊環境條件,應在訂貨時提出;
g、 需要附件、備件時,應提出其種類和數量;
h、 需方要求提供水平母排,則必須在合同中指明。